INKAPO
Zasílání novinek E-mailem

rychlý kontakt


Ing. Zdeněk Petrtyl
energetický specialista

tel.: 724 034 897
e-mail: z.petrtyl@inkapo.cz

INKAPO
Ledenická 12
Srubec (okr. Č. Budějovice)
370 06 

Nechte nám rychlý vzkaz. Komunikace s námi Vás mile překvapí.

Jak vybrat okenní profil

Autor: Ing. Zdeněk Petrtyl   vloženo: 28.09.2011

Při výběru okenního profilu je nutno řídit se souhrnem zásad, jejichž splněním je vytvořen předpoklad, že při dodržení kvalitního výrobního procesu bude výsledný výrobek splňovat všechny potřebné náležitosti.

Počet komor u oken plastových nebo pouhá šířka rámu u oken dřevěných nemusí být vždy tím rozhodujícím parametrem. Na výplně stavebních otvorů mohou být kladeny zcela různé požadavky. Ty bývají leckdy i v přímém protikladu u jediného výrobku.

Typicky jde například o požadavek na vodotěsnost či schopnost tepelně izolovat a současný požadavek na zajištění průvzdušnosti.

Funkční vlastnosti oken a dveří jsou zásadně ovlivněny třemi oblastmi, které se nazývají připojovací spára, funkční spára a zasklívací spára. Zmíněné oblasti jsou přehledně vyznačeny na nálsedujícm obrázku.

Jednodušší pozici má investor při výběru oken do novostavby, kde by měly vlastnosti otvorových výplní být optimalizovány v rámci projektové dokumentace.

     Složitější pozice je u výměn oken a při rekonstrukcích. Zde nastává problém vzniku možného nebezpečí volby nevhodného výrobku, které plyne často z neznalosti problematiky. Bohužel se lze často setkat s problematickou úrovní znalostí i u některých prodejců.

Profil plastové otvorové výplně - zásady výběru

Při výběru profilu by měl zhotovitel deklarovat hodnotu součinitele prostupu tepla okenního a křídelního rámu včetně vyztužení. Tento součinitel prostupu tepla se stanovuje buď zkouškou, nebo výpočtem dle ČSN EN ISO 10077-2. Součinitel prostupu tepla rámem se označuje Uf a udává se ve W/(m2.K).

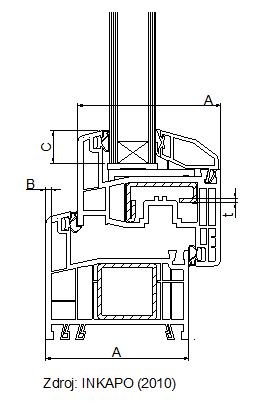
U plastových oken je nutno zdůraznit jednu velmi podstatnou skutečnost. Otvorové výplně musí plnit souhrn požadovaných funkcí. Do nich nepatří pouze stavebně-fyzikální vlastnosti, ale i statická únosnost. Pro to, aby konkrétní otvorová výplň plnila funkci, ke které je určena, není proto důležitý pouze počet komor profilu, jak se někdy mylně uvádí. Obzvláště u prvků velkých rozměrů (balkonové, terasové a vchodové dveře) je naprosto zásadní velikost a tloušťka nosné výztuhy. K tomu je třeba mít k dispozici dostatečný prostor uvnitř profilu, čehož se dosahuje zvětšením jedné komory. Proto se stává, že pro výrobu velkých otvorových výplní se používá profil s menším počtem komor, do kterého lze takovou masivní výztuhu umístit. Je to vykoupeno poněkud horším součinitelem prostupu tepla rámem Uf (W/(m².K), ale toto zhoršení je kompenzováno požadovanou funkčností takovéhoto řešení. Pro úplnost je nutné dodat, že zmíněný profil musí mít celkovou hloubku stejnou, jako mají ostatní vícekomorové výrobky toho kterého systému (kóta A na obrázku).

Příklad profilu plastového okna s vyznačenými geometrickými charakteristikami Příklad profilu plastového okna s vyznačenými geometrickými charakteristikami

Důležité geometrické charakteristiky plastového profilu dle tohoto obrázku jsou:

  • šířka profilu (stavební hloubka) v mm – viz kóta A obrázku.
  • tloušťka vnějších pohledových stěn profilu dle ČSN EN 12608 čl. 5.3.2. v mm (pro tř. A min. 2,8 mm, lépe 3,0 mm ) – viz kóta B obrázku
  • počet komor v rámu i v křídle (minimálně by jich mělo být 5)
  • druh, velikost, tloušťka profilu a materiál výztuhy (obvykle ocelové) v rámu a v křídle okna (pro dveře a okna o větších rozměrech je potřeba použít větší tloušťky výztuh) – viz obrázek
  • hloubka zapuštění horní hrany distančního rámečku skla pod hranu křídla (minimálně by měl být zapuštěn 15 mm) – viz kóta C na obrázku

 

Zajištění pevnosti plastových rámů a křídel

Zajištění tuhosti a pevnosti rámů je nutné věnovat zvýšenou pozornost. Ta se zajistí jednak kvalitním vyztužením a dále také správným svařováním spojů rámů či křídel. Vždy je potřeba uvést velikost výztuhy a její polohu.

Obvykle se používají ocelové výztuhy, u nichž je potřeba určit i tloušťku ocelového profilu. Ta může mít různé tvary dle následujících obrázků.

Výztuha okenního rámu uzavřená Výztuha okenního rámu uzavřená
Výztuha tvaru otevřeného profilu (otevřené „C“) Výztuha tvaru otevřeného profilu (otevřené „C“)
Výztuha tvaru polouzavřeného profilu (polouzavřené „C“) Výztuha tvaru polouzavřeného profilu (polouzavřené „C“)

Tloušťka ocelové výztuhy bývá dle druhu zatížení (dle velikosti otvorové výplně) 1,5 mm; 1,75 mm; 2,00 mm až 2,50 mm.

Správný druh použité výztuhy vždy předepisuje zhotovitel plastových profilů ve svém technickém předpisu. Při pochybnostech je nutno si tento předpis vyžádat k nahlédnutí a ověřit si tak vhodnost nabízeného řešení.

Výztuha však může být řešena použitím profilu z kompozitního plastu (plast je vyztužen vlákny), případně výztuží z kovových slitin nebo z kompozitního materiálu. Některá okna výztuhu v křídle nepotřebují, neboť konstrukčně je otvorová výplň řešena tak, že jí tuhost dodává zasklení, které je do okna vlepeno.

Křídlo s vlepeným sklem bez výztuhy profilu Křídlo s vlepeným sklem bez výztuhy profilu

Použití konkrétního vyztužovacího profilu se řídí technickým předpisem výrobce plastového profilu. Ten se vypracovává podle výsledků statického výpočtu ověřeného sadou zatěžovacích zkoušek. Zhotovitel by měl být vždy schopen prokázat správnost svého návrhu tak, že předloží technický list výrobce profilu nebo obdobný doklad (dále předpis výrobce), kde je předepsán druh použité výztuže s ohledem na rozměr prvku a podle použitého okenního či dveřního profilu. Dojde-li po montáži na stavbě k nadměrným deformacím rámu či křídla a nedojde-li k dohodě smluvních stran ohledně příčiny, lze prokázat zkouškou, jaká výztuha byla použita, a je-li v souladu s předpisem výrobce. Tato zkouška je destruktivní (plastový profil je nutné příčně rozříznout) a posuzuje se také, zda mohly být deformace způsobeny též chybnou montáží otvorové výplně do stavebního díla.

Profil dřevěné otvorové výplně - zásady výběru

Profil rámů musí být vyroben z hranolu vzniklého slepením několika dřevěných lamel (minimální počet lamel je 3, přípustné je provedení i s čtyřvrstvým nebo vícevrstvým hranolem – viz následující obrázek.

Třívrstvý a čtyřvrstvý hranol dřevěného okna Třívrstvý a čtyřvrstvý hranol dřevěného okna

Hranol může být vyroben i slepením několika lamel barevně odlišných dřevin nebo dřevin různě tvrdých (často se označuje termínem převzatém z němčiny – tzv. Duo-Holz), případně slepením dřevěných lamel a jedné vnitřní tepelně-izolační vrstvy, která musí být parotěsně uzavřená či jinak opatřená proti kondenzaci vodní páry - viz následující obrázek.

Hranol "Duo-Holz" Hranol

Dále se provádí úprava z lamel s vnitřním frézováním drážek pro zvýšení tepelného odporu profilu, přitom vnitřní drážky musí být umístěny ve vnitřní části hranolu tak, aby nehrozila kondenzace vodní páry v profilu). Toto řešení však z praktického hlediska nepřináší podstatná zlepšení, jde spíše o obchodní strategii výrobců - viz následující obrázek.

Hranol s podélnými otvory Hranol s podélnými otvory

Profil rámů nemá být vyroben z hranolu masivního nebo z nelepeného dřeva. Tento profil může být použit zcela výjimečně, např. při výrobě replik starých oken, pak se ale musí jednat o kvalitní řezivo zásadně s radiální orientací vláken. Na takto provedená okna se však nemohou uplatňovat v plné míře normové požadavky, před jejich výrobou je nutné projednat s odběratelem či investorem výjimku.

Vlhkost dřeva musí být v rozmezí 10–14 %, přitom v jednom příčném řezu nesmí být rozdíl vlhkosti mezi jednotlivými lamelami větší než 3 %.

Vnější a vnitřní lamely musí být vyrobeny z řeziva s radiálním až poloradiálním sklonem vláken. Není přípustný tangenciální sklon. Co se tím přesně míní vyplývá z následujícího obrázku. Rozpětí od radiálního k poloradiálnímu sklonu vláken znamená orientaci "let" dřeva vodorovně až po úhel cca zmíněných 45° vzhledem k aktuální orientaci obrázku.

Radiální a poloradiální sklon struktury dřeva lamel Radiální a poloradiální sklon struktury dřeva lamel

Naopak tangenciální až polotangenciální sklon by znamenal orientaci svisle až po 45°. Příkladem je uspořádání vnitřní (středové) lamely spodního profilu na následujících obrázcích. Pokud by takováto lamela byla použita jako krajní, došlo by k prokreslování struktury dřeva na povrch okna. Takový povrch není možné kvalitně opatřit barvou, protože dochází k efektu "rybí šupiny".

Tangenciální sklon vláken dřeva Tangenciální sklon vláken dřeva

Orientace vláken musí být u sousedních lamel vždy střídána, jak plyne ze všech předchozích obrázků. Pokud by tato podmínka nebyla splněna, nedojde k vzájemnému vyrušení vnitřních sil ve dřevě, které vznikají v každém řezivu vlivem kolísání vlhkosti. Při splnění této podmínky je profil tvarově stabilní a nedochází ke kroucení či prohýbání dřeva vlivem působení klimatických podmínek.

Zajištění pevnosti dřevěných rámů a křídel

Zajištění tuhosti a pevnosti rámů se oproti výrobkům plastovým dosahuje snáze a s větším efektem. Podstatné je, aby profil byl dostatečně masívní (z tohoto pohledu postačuje běžně tloušťka profilu minimálně 68 mm, i když v současnosti se toto provedení dostává do problémů s dodržením tepelně technických požadavků a je lépe použít hranoly tloušťky 78 mm a více).

Dále je podstatné provedení rohových spojů, které se provádí lepením většinou truhlářsky na čep a rozpor. Zde je důležitá kvalita použitého lepidla (musí být vodovzdorné), přesnost frézovacích nástrojů a způsob spojování rámů do celků. Solidní výrobci toto provádí zásadně v rámových lisech.

Zpět - tlačítko